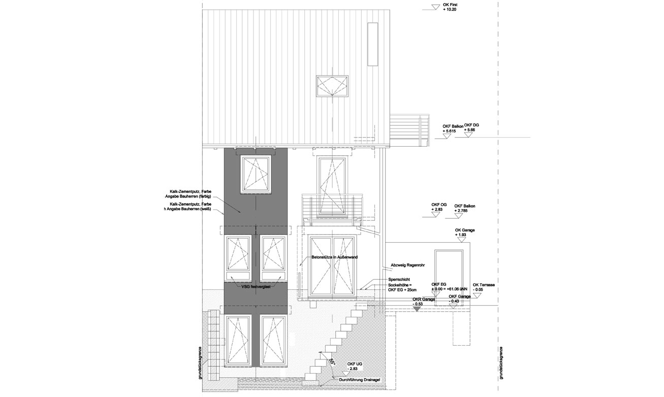
Projektbeschreibung
Wohnen in Pulheim, 2005
In einem Neubaugebiet in Pulheim erwarben die Bauherren ein Grundstück und beauftragten uns mit den Leistungsphasen 1-8 (Entwurf bis Bauleitung außer Ausschreibung) ihres Einfamilienhauses. Die Bauherren haben neben dem Innenausbau auch die Elektroarbeiten und die Ausschreibung in Eigenleistung übernommen.






